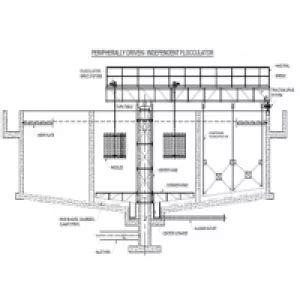
Secondary Clarifier
Clarifier System - Water Treatment Clarifier System Manufacturer from Pune
watertreatmentindia.co.in
Sewage Treatment Plant - VIRGIN WHITE MBBR MEDIA Trader - Wholesaler ...
aquatechinternational.co.in
Ahmedabad's Pioneer CENTRE CAGE DRIVEN CLARIFIERS Manufacturer & Supplier
fabartenviroequipments.com