Find Your Style
Women
Men
Accessories
Search for clothing, brands, styles...
×
Women
Men
Accessories
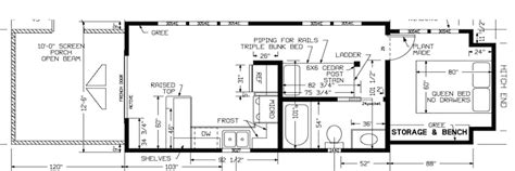
Caledonian Express Cabins
Search
Loading...
No suggestions found
WeWork Vaishnavi Signature at INR 550/day - Coworking Space for a Day ...
myhq.in
Malabar Gold & Diamonds Eyes INR 78, 000 Cr Turnover in FY26 | FE ...
retail.financialexpressb2b.com
IRCTC Mata Vaishno Devi train tour by Shri Shakti Express starts at INR ...
timesofindia.indiatimes.com
New Airline Fly Arystan: Oneway 4500 INR only! - The Airline Blog
airlineblog.in
Prothrombin Time INR Test (PT INR Test) at ₹349 – healthcare nt sickcare
healthcarentsickcare.com
WeWork Vaishnavi Signature at INR 550/day - Coworking Space for a Day ...
myhq.in
Learn FaceYoga by Vibhuti Arora INR 999/- (online) – House Of Beauty India
houseofbeautyindia.com
Explore India by Train: Your Comprehensive Indian Railways Travel Guide
tripzilla.in
The 6 most beautiful train cabins in the world | Condé Nast Traveller India
cntraveller.in
Train Travel in India - A Complete Guide for Indian Railways
tripzilla.in
Clips.in - News World
clips.in
7 Updated Super Luxury Trains In India (with photos) For Your Trip In 2026
traveltriangle.com
Inside Maharajas’ Express, India’s costliest train | TimesTravel
timesofindia.indiatimes.com
4 Most Expensive Train Rides In India (With Routes & Prices) 2024
travelandleisureasia.com
Caledonian Railway (Brechin): Buy Caledonian Railway (Brechin) by ...
flipkart.com
7 Updated Super Luxury Trains In India (with photos) For Your Trip In 2026
traveltriangle.com
The 11 Most Luxurious Trains In The World
peaklife.in
Railway starts to run 4 Rajdhani Express trains with New Upgraded Tejas ...
pib.gov.in
Ways to Stay | Milwaukee Cabins | Jellystone Park™, Caledonia, WI
campjellystone.com
Hanoi - Sapa Deluxe Sleeper train by Damitrans Express - Klook India
klook.com
Ways to Stay | Milwaukee Cabins | Jellystone Park™, Caledonia, WI
campjellystone.com
Ha Noi - Da Nang Sleeper Train By Laman Express - Klook India
klook.com
Ways to Stay | Milwaukee Cabins | Jellystone Park™, Caledonia, WI
campjellystone.com
Ways to Stay | Milwaukee Cabins | Jellystone Park™, Caledonia, WI
campjellystone.com
Ways to Stay | Milwaukee Cabins | Jellystone Park™, Caledonia, WI
campjellystone.com
Ways to Stay | Milwaukee Cabins | Jellystone Park™, Caledonia, WI
campjellystone.com
Ways to Stay | Milwaukee Cabins | Jellystone Park™, Caledonia, WI
campjellystone.com
Ways to Stay | Milwaukee Cabins | Jellystone Park™, Caledonia, WI
campjellystone.com
Ways to Stay | Milwaukee Cabins | Jellystone Park™, Caledonia, WI
campjellystone.com
Ways to Stay | Milwaukee Cabins | Jellystone Park™, Caledonia, WI
campjellystone.com
Ways to Stay | Milwaukee Cabins | Jellystone Park™, Caledonia, WI
campjellystone.com
Ways to Stay | Milwaukee Cabins | Jellystone Park™, Caledonia, WI
campjellystone.com
Ways to Stay | Milwaukee Cabins | Jellystone Park™, Caledonia, WI
campjellystone.com
Ways to Stay | Milwaukee Cabins | Jellystone Park™, Caledonia, WI
campjellystone.com
Ways to Stay | Milwaukee Cabins | Jellystone Park™, Caledonia, WI
campjellystone.com
Ways to Stay | Milwaukee Cabins | Jellystone Park™, Caledonia, WI
campjellystone.com
Ways to Stay | Milwaukee Cabins | Jellystone Park™, Caledonia, WI
campjellystone.com
Ways to Stay | Milwaukee Cabins | Jellystone Park™, Caledonia, WI
campjellystone.com
Air India commits over $400m to fully refurbish cabin interiors ...
freepressjournal.in
Ways to Stay | Milwaukee Cabins | Jellystone Park™, Caledonia, WI
campjellystone.com
Ways to Stay | Milwaukee Cabins | Jellystone Park™, Caledonia, WI
campjellystone.com
Ways to Stay | Milwaukee Cabins | Jellystone Park™, Caledonia, WI
campjellystone.com
Ways to Stay | Milwaukee Cabins | Jellystone Park™, Caledonia, WI
campjellystone.com
Performance of Rupee over the Last 10 Years
vajiramandravi.com
Ways to Stay | Milwaukee Cabins | Jellystone Park™, Caledonia, WI
campjellystone.com
Venice Simplon Orient Express: Know All About It For A Luxury Ride
traveltriangle.com
Ways to Stay | Milwaukee Cabins | Jellystone Park™, Caledonia, WI
campjellystone.com
Ways to Stay | Milwaukee Cabins | Jellystone Park™, Caledonia, WI
campjellystone.com
Ways to Stay | Milwaukee Cabins | Jellystone Park™, Caledonia, WI
campjellystone.com
Ways to Stay | Milwaukee Cabins | Jellystone Park™, Caledonia, WI
campjellystone.com
Ways to Stay | Milwaukee Cabins | Jellystone Park™, Caledonia, WI
campjellystone.com
Air India Express Cabin Crew Strike Ends, 25 Reinstated - Goodreturns
goodreturns.in
Ways to Stay | Milwaukee Cabins | Jellystone Park™, Caledonia, WI
campjellystone.com
Ways to Stay | Milwaukee Cabins | Jellystone Park™, Caledonia, WI
campjellystone.com
Ways to Stay | Milwaukee Cabins | Jellystone Park™, Caledonia, WI
campjellystone.com
Ways to Stay | Milwaukee Cabins | Jellystone Park™, Caledonia, WI
campjellystone.com
Ways to Stay | Milwaukee Cabins | Jellystone Park™, Caledonia, WI
campjellystone.com
Ways to Stay | Milwaukee Cabins | Jellystone Park™, Caledonia, WI
campjellystone.com
Ways to Stay | Milwaukee Cabins | Jellystone Park™, Caledonia, WI
campjellystone.com
Ways to Stay | Milwaukee Cabins | Jellystone Park™, Caledonia, WI
campjellystone.com
Ways to Stay | Milwaukee Cabins | Jellystone Park™, Caledonia, WI
campjellystone.com
Ways to Stay | Milwaukee Cabins | Jellystone Park™, Caledonia, WI
campjellystone.com
Ways to Stay | Milwaukee Cabins | Jellystone Park™, Caledonia, WI
campjellystone.com
Inverness Vacation Rentals | Airbnb
airbnb.com
Ways to Stay | Milwaukee Cabins | Jellystone Park™, Caledonia, WI
campjellystone.com
Ways to Stay | Milwaukee Cabins | Jellystone Park™, Caledonia, WI
campjellystone.com
All You Need To Know About Vande Bharat Express Trains
travelandleisureasia.com
Ways to Stay | Milwaukee Cabins | Jellystone Park™, Caledonia, WI
campjellystone.com
Classes Of Travel On Indian Railways
erail.in
Ways to Stay | Milwaukee Cabins | Jellystone Park™, Caledonia, WI
campjellystone.com
Ways to Stay | Milwaukee Cabins | Jellystone Park™, Caledonia, WI
campjellystone.com
Ways to Stay | Milwaukee Cabins | Jellystone Park™, Caledonia, WI
campjellystone.com
Ways to Stay | Milwaukee Cabins | Jellystone Park™, Caledonia, WI
campjellystone.com
Ways to Stay | Milwaukee Cabins | Jellystone Park™, Caledonia, WI
campjellystone.com
Ways to Stay | Milwaukee Cabins | Jellystone Park™, Caledonia, WI
campjellystone.com
Ways to Stay | Milwaukee Cabins | Jellystone Park™, Caledonia, WI
campjellystone.com
Ways to Stay | Milwaukee Cabins | Jellystone Park™, Caledonia, WI
campjellystone.com
PT-INR Test at ₹349 – healthcare nt sickcare
healthcarentsickcare.com
Ways to Stay | Milwaukee Cabins | Jellystone Park™, Caledonia, WI
campjellystone.com
Ways to Stay | Milwaukee Cabins | Jellystone Park™, Caledonia, WI
campjellystone.com
Ways to Stay | Milwaukee Cabins | Jellystone Park™, Caledonia, WI
campjellystone.com
Ways to Stay | Milwaukee Cabins | Jellystone Park™, Caledonia, WI
campjellystone.com
Ways to Stay | Milwaukee Cabins | Jellystone Park™, Caledonia, WI
campjellystone.com
Ways to Stay | Milwaukee Cabins | Jellystone Park™, Caledonia, WI
campjellystone.com
AI Express cabin crew call off strike; airline to reinstate 25 ...
hr.economictimes.indiatimes.com
Ways to Stay | Milwaukee Cabins | Jellystone Park™, Caledonia, WI
campjellystone.com
Ways to Stay | Milwaukee Cabins | Jellystone Park™, Caledonia, WI
campjellystone.com
Ways to Stay | Milwaukee Cabins | Jellystone Park™, Caledonia, WI
campjellystone.com
Paris World
parisworld.in
AVIAGROUPS - Group Travel Platform
aviagroups.com
Ways to Stay | Milwaukee Cabins | Jellystone Park™, Caledonia, WI
campjellystone.com
Ways to Stay | Milwaukee Cabins | Jellystone Park™, Caledonia, WI
campjellystone.com
Air India Express cabin crew ends strike, airline to take back ...
hindustantimes.com
Avion Express Office Photos
glassdoor.co.in
Book Luxurious Cabins On The Maharaja Express - Madras Travels
maharajaexpress.madrastravels.in
Buy Aali vithai ennai 100ml Online - Ayush Care
ayushcare.in
Explore India's heritage onboard these 4 royal trains like a king and a ...
freepressjournal.in
4 Most Expensive Train Rides In India (With Routes & Prices) 2024
travelandleisureasia.com
Air India Express completes merger with AIX Connect, marking another ...
airindia.com
The Orient Express : Facts About This Luxury Train In Europe
traveltriangle.com
Ibis Aberdeen Centre | Well Equipped Hotel in Aberdeen - ALL
all.accor.com
Air India Express Recruitment 2023 - Check Notification PDF
adda247.com
Irctc: Latest News, Videos and Photos of Irctc | Times of India
timesofindia.indiatimes.com
Book Cordelia Cruise Packages Chennai to Colombo (Sri Lanka)
holidaymoods.in
Warf-5 Tablet: Uses, Side-effects, Price, Dosage & More Info - PharmEasy
pharmeasy.in
A FRAME KOOKAL
bookingmania.in
Press Release:Press Information Bureau
pib.gov.in
About Us – Label Bhavana Singh
labelbhavanasingh.com
Shocking service - Reviews, Photos - Transpennine Express - Tripadvisor
tripadvisor.in
BIM objects - Free download! Express Shower cabin | BIMobject
bimobject.com
Maharaja's Express Train- Booking, Ticket Price - Journey यात्रा मस्ती
journeyyatramasti.com
Irctc: Latest News, Videos and Photos of Irctc | Times of India
timesofindia.indiatimes.com
BIM objects - Free download! Express Shower cabin | BIMobject
bimobject.com
BIM objects - Free download! Express Shower cabin | BIMobject
bimobject.com
YOGI BEAR'S JELLYSTONE PARK CAMP-RESORT (Caledonia) - Campground ...
tripadvisor.in
My Store
replicartz.com
Air India Express cabin crew call off strike; airline to reinstate 25 ...
theweek.in
Hong Kong Airlines office photos
glassdoor.co.in
M87-14: Chord - Lt. Blue – 87store.in
87store.in
Book Cordelia Cruise Chennai to Maldives to Goa via Colombo
holidaymoods.in
Related Searches
Caledonian Sky Cabins
MS Caledonian Sky Cabins
Caledonian Sleeper Cabin
Loch Garry Caledonian Cabins
Caledonian Cabins Invergarry
Caledonian Sleeper Train
Caledonian Log Homes
Caledonian Cabins Built by Pioneer Log Homes
Log Cabin in New Caledonia
Caledonian Sky Premium Balcony Cabins
Caledonian Express Cabins
Caledonian Sky Ship
Safe Caledonia Cabin
Cabin L5 Royal Caledonian
Caledonian Single Cabin Room
Caledonian Modular Log
Caledonian Club Single Cabin Room
Caledonian Sleeper Suite
British Caledonian Cabin Interior
Log Cabin Sheds
Caledonian Sleeper Room
Caledonian Logs
Calderfields Cabin
Types of Cabins On the Caledonian Sleeper
Caledonian Sleeper Seats
New Caledonian Sleeper
Caledonian Sky Cabin Diagrams
Caledionian Houses
Caledonian Sleeper Double Cabin
Caledonian Sleeper Design
Caledonian Sleeper Beds
Noble Caledonia Island Sky Cabin Plan
Caledonian Sleeper Rooms
Caledonian Sleeper Train Cabins
British Caledonian Cabin Crew
First Class Caledonian Sleeper
Caledonian Cabin Invergarry
British Caledonian Airways Cabin Crew
Caledonian Sleepers Return with Cabin
Caledonian Highlands
Calidonia Cabin Crew
Caledonain Cabin Crew
Abercorris Cabins
DC-6 Cabin
Caledonian Sleeper Ensuite Cabin
DC-10 Cabin
Caledonian Sky
Caledonian Cabin Crew Uniforms
Caledonian Sky Deck Plan
Caledonian Sleeper First Class
Search
×
Search
Loading...
No suggestions found